
Rodinný dům, Starý Plzenec - Sedlec
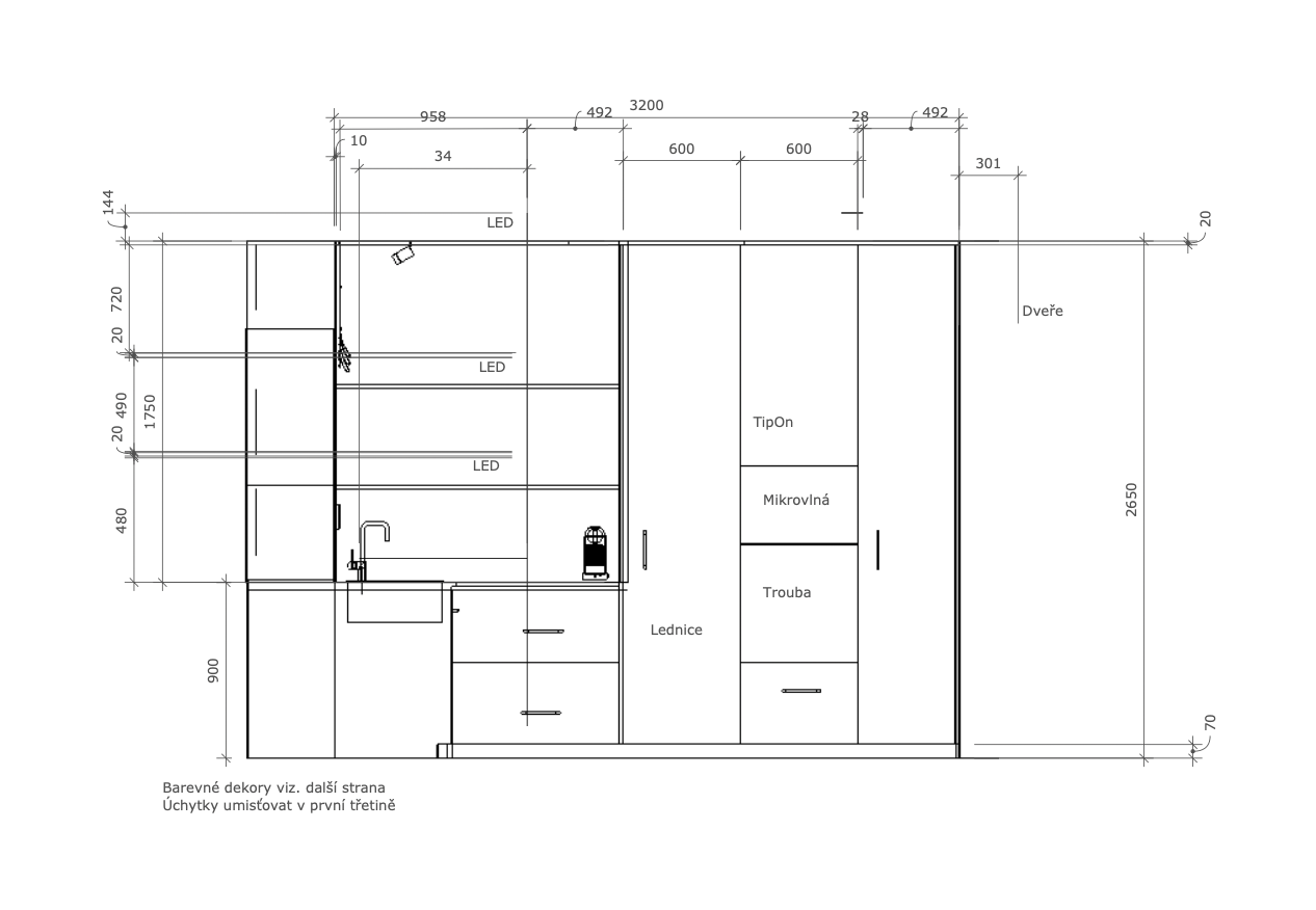
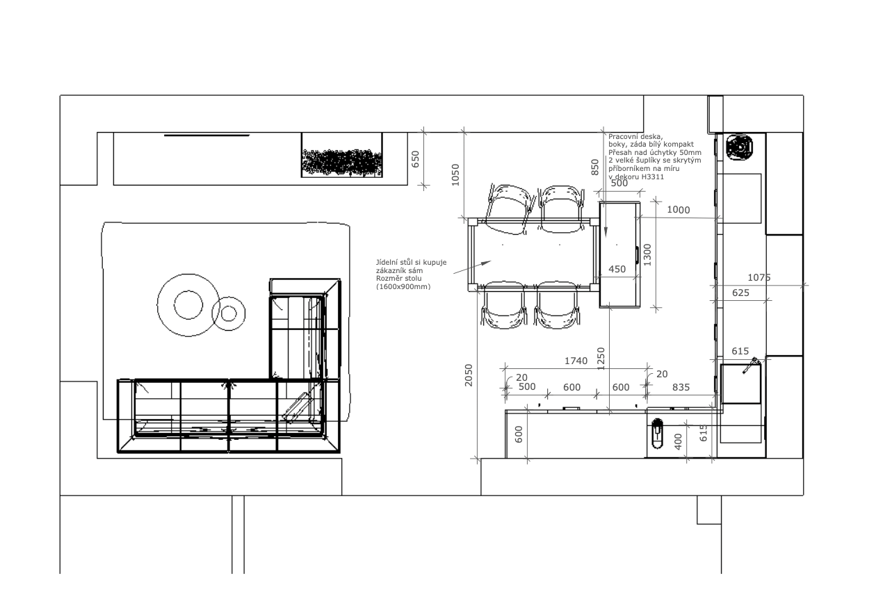
V tomto případě se klienti ozvali ve fázi hrubé stavby. Hledali pomoc s barevným konceptem celého prostoru, především kuchyně a obytné části. Původně plánovali bílou kuchyň, ale zvažovali i zelenou. Cílem bylo navrhnout interiér minimalistický, vzdušný a nadčasový. Finální návrh kombinuje jemné přírodní tóny se zelenými akcenty a vytváří elegantní a přesto útulný prostor, který odpovídá životnímu stylu klientů.
"S Katkou byla skvělá spolupráce i při návrhu interiéru v našem domě i v nahrávacím studiu. Obojí navrhla skvěle a u obojího nám pomohla i s celkovou realizaci až do konce. Nejprve jsem moc nevěděl co mohu od spolupráce očekávat, ale velmi brzy jsem poznal, že pomoc s nastavením interiéru jak po ergonomické, tak i estetické a funkční stránce je opravdu užitečná. Zpětně si ani nedovedu představit, že bychom byli takovéto interiéry, které tak dobře fungují, sami schopni vytvořit bez její pomoci. Děkuju ještě jednou a spolupráci s Kateřinou Kišš vřele doporučuju. Naprostá spokojenost od návrhu až po úplné finále, kdy bylo všechno hotovo."
RD Sedlec, Starý Plzenec - Hana Procházková a Jan Štěpánek















